Virginia Street

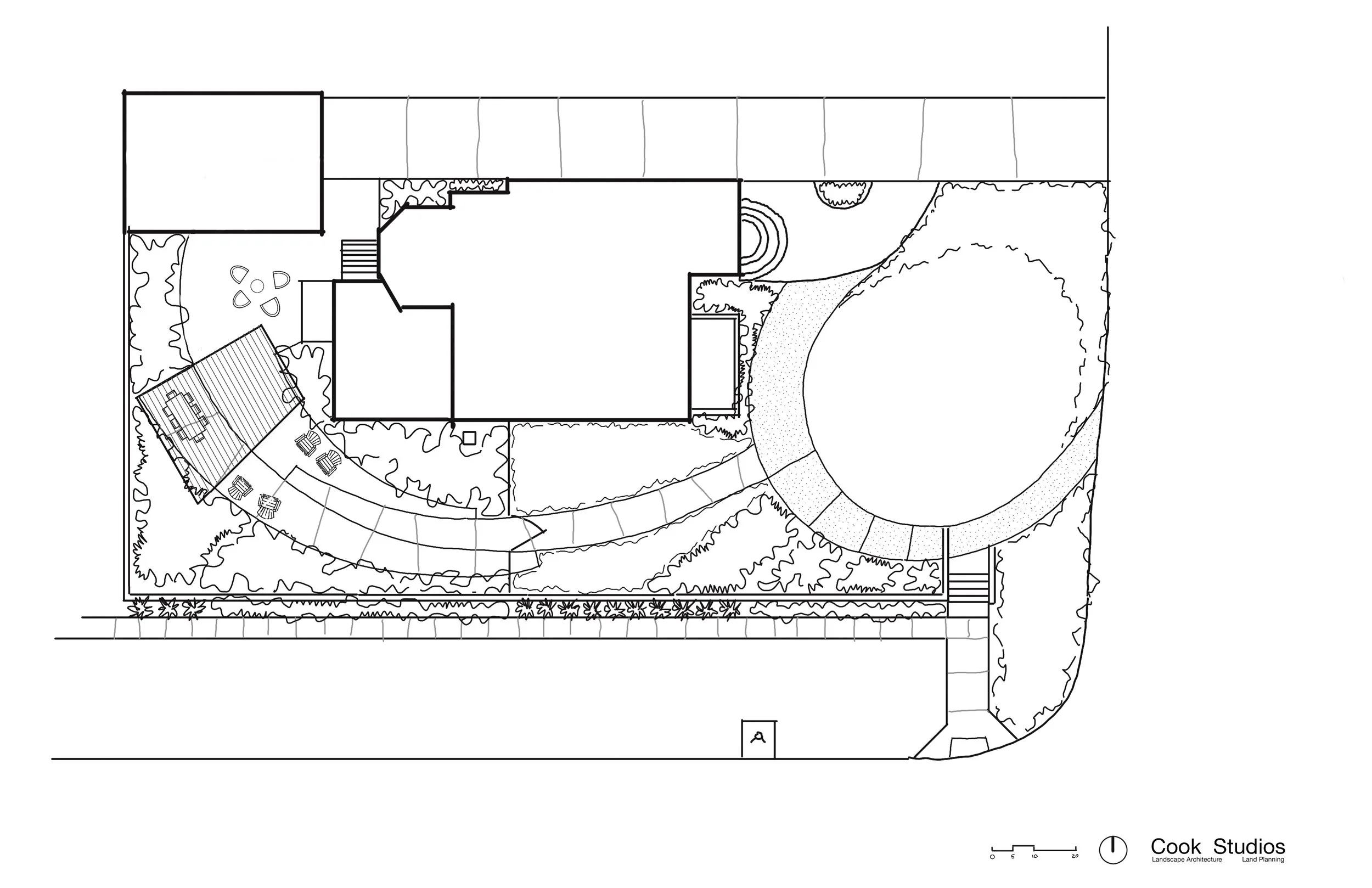
In 2015, Cook Studios collaborated with the client to envision landscape improvements for a historic home located in Salt Lake City. The enhancements included improved circulation, with a newly constructed path leading to the front door from the street and connecting the front, side, and back yards.

The backyard was transformed into the primary gathering space, designed for entertaining and outdoor dining. Adjacent to the house, there is a single aspen tree, which was celebrated by proposing the establishment of a grove of aspens in that location, which fortuitously is adjacent the dining room table.

At the property’s perimeter, extending from the back to the front, along the side, a new brick wall will elevate the grade and expand the yard by 8 feet, providing additional space for plants that will serve as a buffer against the street.

Previous
Previous

Panorama