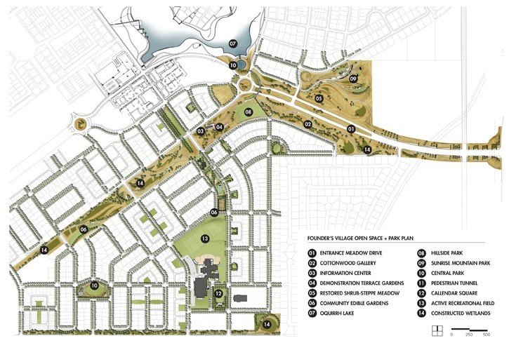
Daybreak Parks and Open Space

Over the years, I have worked on many projects at Daybreak. From Oquirrh Lake, to the Daybreak Corporate Center, the work has spanned many types and scales.

The work itself has also ranged from Concept sketches all the way through construction. The projects presented here were undertaken during my time at Design Workshop.

Previous
Previous

Black Diamond

Next
Next

Mountain View Corridor